SANELA Sprchový panel SLSN 02ET integrovaný senzor, 2 vody, termostatický ventil 92022
Model: 92022
Podobné produkty
Popis
SANELA Sprchový panel SLSN 02ET integrovaný senzor, 2 vody, termostatický ventil 92022- Nerezové sprchové nástenné panely so zabudovaným automatickým ovládaním vody
- Automatický snímač reaguje na vstup osoby do snímanej zóny okamžitým spustením vody
- Po odchode z tejto zóny dôjde s oneskorením k vypnutiu vody
- Oneskorenie je nastaviteľná diaľkovým ovládačom SLD ??03 v rozmedzí 0,25 - 7,75 s
- Funkcia automatického vypnutia vody po 5 minutách
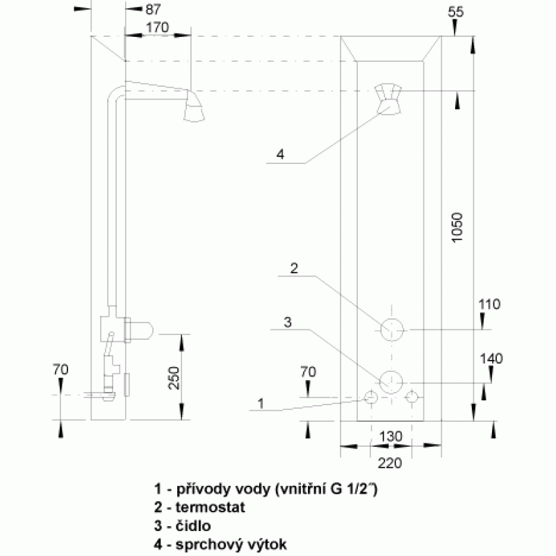
- Regulácia teploty sa vykonáva termostatickým ventilom
Technické údaje:
Napájacie napätie: 24V DC
Príkon: 10 W
Dosah: 0,3 - 0,7 m
Doporučený pracovný tlak: 0,1 - 0,6 MPa
Prietok: 12 l / min. (inf. údaj)
Vstup vody: vonkajší závit G 1/2 "
Nastavenie teploty vody: termostatickým ventilom
Špecifikácia dodávky:
SLSN 02ET - obj.č. 92022 - sprchový panel s elektronikou, sprchová ružica, elektromagnetický ventil (1 ks), termostatický ventil, prepojovacie hadice, rohový ventil (2 ks
ilustračné foto
Obrázky sa môžu líšiť od originálneho produktu/položky.
Dokumenty
Recenzia (0)
Napísať recenziu
Hodnotenie: Zlé Dobré
Opište kód z obrázku:









